The Perfect Escape for Your Crew of 8
Keiko is the sweet spot for mid-size groups. Eight of you, one floating home, 50km of pristine Gold Coast waterways to explore. Comfortable, well-equipped, and perfect for families or friend groups who want the full houseboat experience without the crowd. No experience required - we'll have you captaining confidently before you leave the dock.
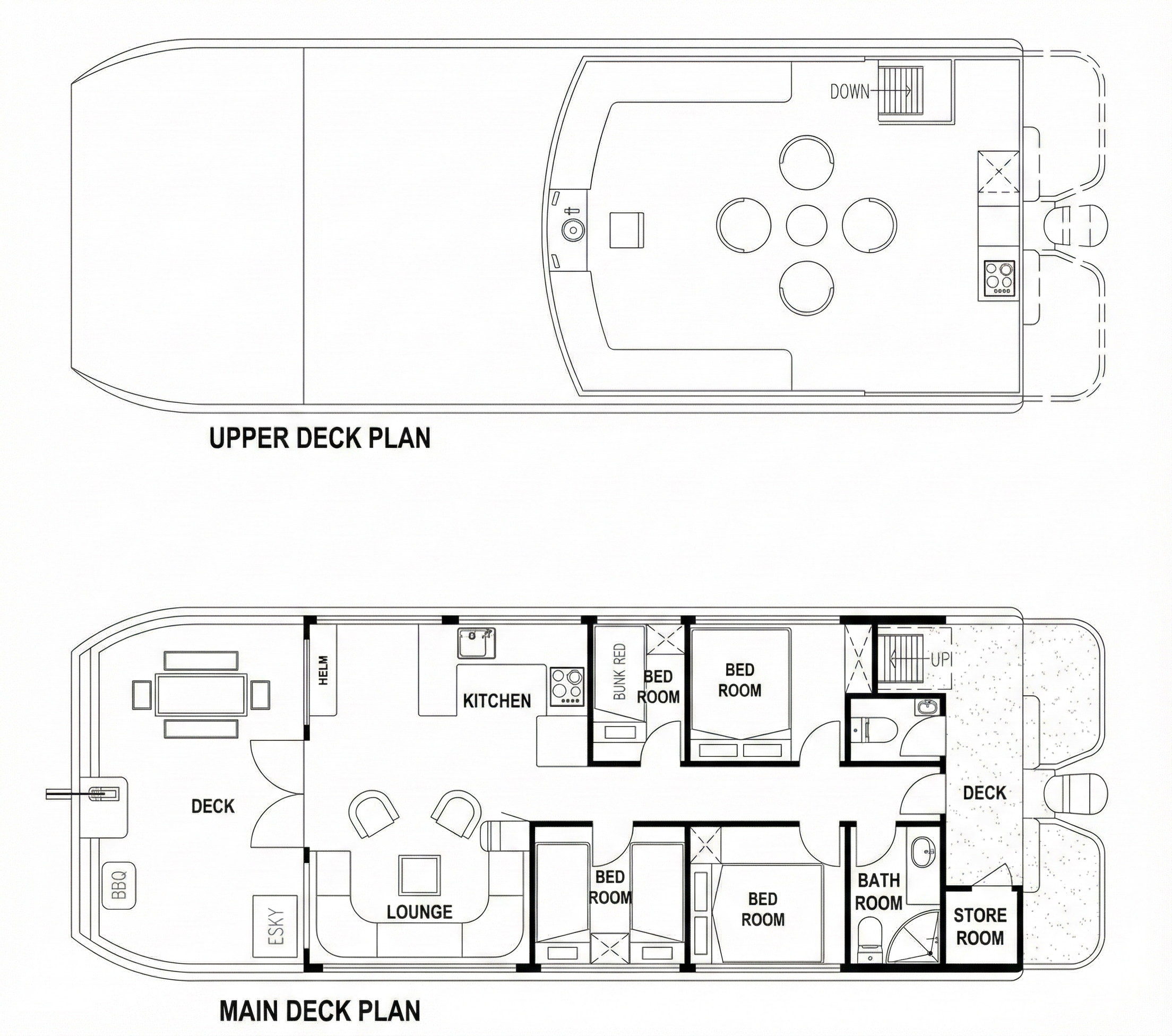
Your Floating Home for 8
Swipe to see more photos









Everything You Need, Nothing You Don't
Keiko hits the sweet spot - comfortable for 8 without feeling crowded, fully equipped without being overwhelming. Perfect for groups who want quality time without the fuss.
Built for Mid-Size Adventures
8
Sleeps
4
Bedrooms
1
Bathrooms
Mid-Size Comfort Category
Vessel Class
Groups of 6-8 guests
Perfect For
Family getaways, friend reunions, small celebrations
Best For
Better Value Than You Think
When you split it between 8 guests, Keiko costs less per person than a decent hotel room - but you get an entire floating home with a full kitchen, deck space for everyone, and 50km of pristine waterways to explore. No crowds, no queues, no compromises.
See Available Dates3-night minimum. Price varies by season. All 8 guests sleep comfortably with proper beds in private cabins.
Keiko Books Fast for Good Reason
As our most popular mid-size boat, Keiko is the go-to choice for groups of 8. School holiday weekends and summer dates often book 6-8 weeks ahead. The best weather windows go first - if you've got specific dates in mind, lock them in now.
Secure Your DatesBook With Complete Confidence
Commercially Registered & AMSA Compliant
Every vessel in our fleet is commercially registered and fully compliant with Australian Maritime Safety Authority requirements. We're a licensed commercial operation with 34 years on the Gold Coast waterways - your safety and peace of mind aren't marketing promises, they're regulatory requirements we take seriously.
Flexible Cancellation
Life happens. Cancel up to 30 days before your trip for your deposit back (minus a small $100 admin fee). No hassles, no hard feelings.
Weather Flexibility
Bad forecast? We'll work with you on rescheduling options. We check BOM forecasts and will be upfront about conditions - your safety matters most.
Always Supported
Full support during business hours plus 24/7 emergency assistance. You're never alone out there - help is one call away.
Captain Training Guaranteed
Our comprehensive briefing ensures you'll leave the dock feeling confident. We don't rush - you'll be ready before you cast off.
Your Keiko Adventure Awaits
Picture this: It's sunset on the Broadwater. Your crew of 8 is scattered across Keiko's deck - someone's grilling dinner, a couple of you are fishing off the back, and there's laughter echoing across the water. Tomorrow you'll explore hidden beaches most Gold Coasters never see. No schedules, no stress, just your people and 50km of pristine waterways. This is what 3 days on Keiko feels like.
⚡ Popular weekends book 6-8 weeks ahead
Check Availability
Select a check-in date to see
available durations and pricing